Запасные части ЧТЗ Запасные части ЧТЗ
Барнаул
Например:
Актобе
Алдан
или
Выбрать автоматически
Актобе
Алдан
Алматы
Алчевск
Архангельск
Астана
Астрахань
Атырау
Баку
Балашиха
Барнаул
Белгород
Бердянск
Бишкек
Владивосток
Владикавказ
Воркута
Воронеж
Горловка
Грозный
Донецк
Екатеринбург
Иваново
Ижевск
Иркутск
Казань
Калининград
Каменск-Уральский
Караганда
Каховка
Кемерово
Киров
Комсомольск-на-Амуре
Костанай
Краснодар
Красноярск
Красный луч
Ленск
Луганск
Магадан
Магнитогорск
Макеевка
Махачкала
Мелитополь
Минск
Мирный (Якутия)
Москва
Мурманск
Нерюнгри
Нижневартовск
Нижний Новгород
Нижний Тагил
Новая каховка
Новокузнецк
Новосибирск
Новый Уренгой
Норильск
Ноябрьск
Нур-Султан
Омск
Оренбург
Ош
Павлодар
Пермь
Петрозаводск
Петропавловск
Петропавловск-Камчатский
Псков
Ростов-на-Дону
Салехард
Самара
Санкт-Петербург
Саратов
Севастополь
Семей
Симферополь
Сочи
Ставрополь
Сургут
Сыктывкар
Тараз
Ташкент
Токмак
Томск
Тында
Тюмень
Ульяновск
Усинск
Усть-Каменогорск
Уфа
Хабаровск
Ханты-Мансийск
Херсон
Челябинск
Чита
Шымкент
Экибастуз
Энергодар
Южно-Сахалинск
Якутск
Ваш город
Барнаул
Войти
Запасные части к тракторам на одном сайте
+7 (932) 303-00-10
+7 (932) 303-00-10
г. Барнаул, ул. Попова, д. 244
Пн-Пт: 9:30-18:30 Cб-Вс: Выходной
Отправить заявку


Устройство и принцип работы ДЭТ-250М2Б1


/
с НДС 20%
Описание
Описание конструкции базового трактора дано в «Техническом описании и инструкции по эксплуатации трактора ДЭТ-250М2».

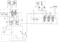
Гидропривод. Принципиальная схема
Рис. 3 Гидропривод. Принципиальная схема
1-гидроцилиндр подъема и опускания отвала бульдозера; 2, 9-гидрораспределитель; 3-гидроцилиндр перекоса отвала с гидрозамком и предохранительным клапаном; 4-гидроцилиндр изменения вылета зуба рыхлителя; 5-гидронасос; 6-гидронасос; 7-гидробак; 8-гидроцилиндр подъема и опускания рыхлителя

Принципиальная схема гидропривода базового трактора с элементами гидропривода, входящими в состав бульдозерного и рыхлительного оборудования, изображена на рис. 3.
Устройство и принцип работы